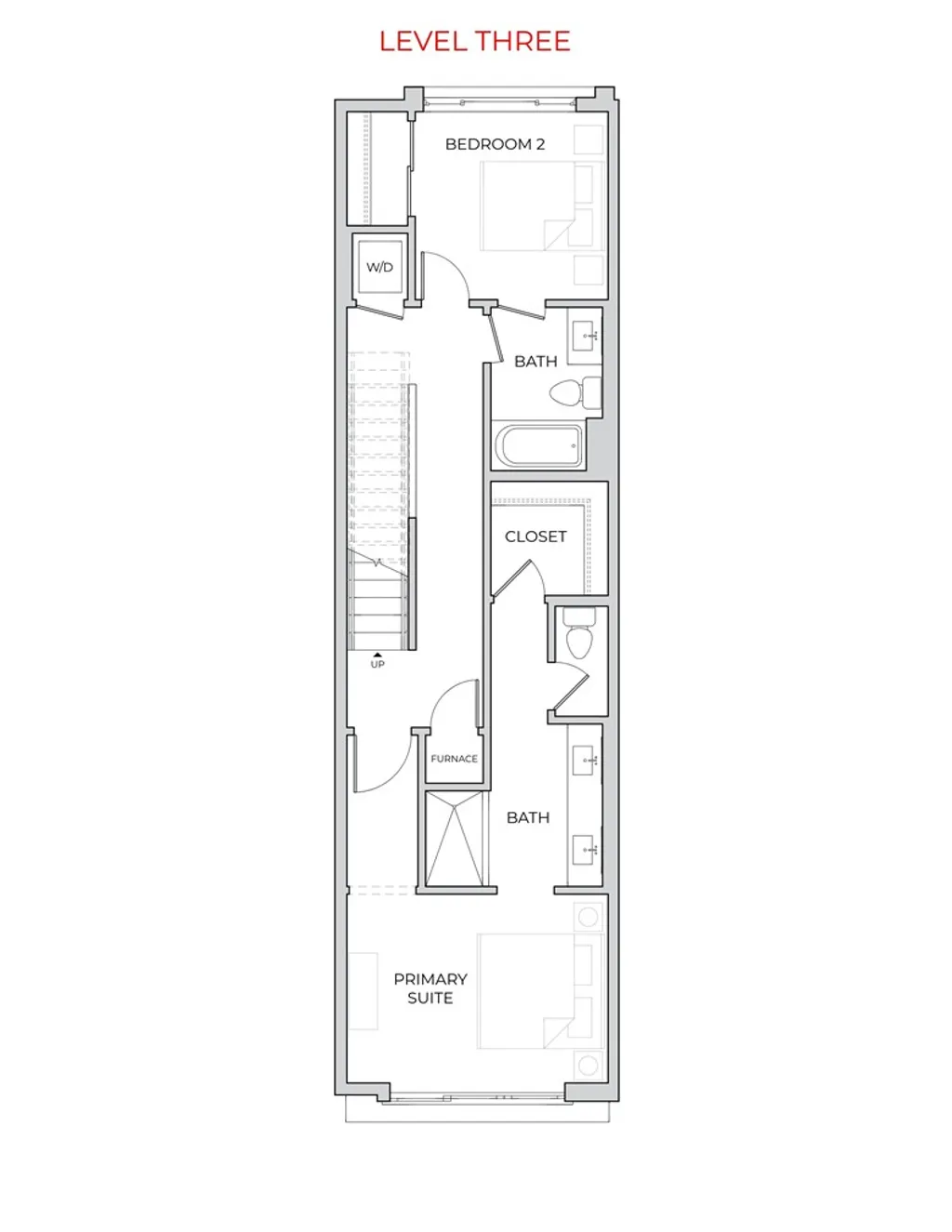
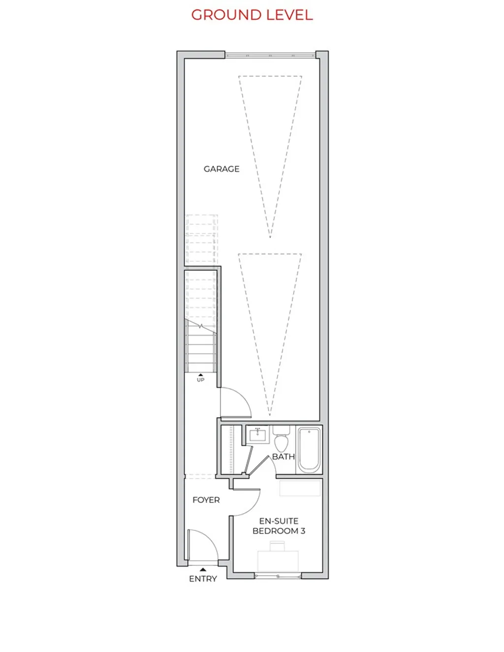
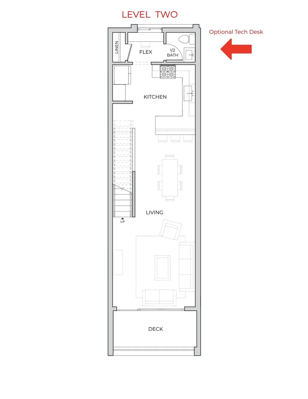
BRAND NEW CONSTRUCTION - Welcome to Lot 13 at Trinity, a limited collection of 23 luxury ocean-view townhomes and condominiums with spacious rooftop decks, located in Grover Beach's West End, just minutes from the shoreline. This contemporary 3-bedroom, 3.5-bath townhome offers open-concept living with modern and thoughtful finishes throughout. The kitchen features quartz countertops, designer cabinetry, and stainless-steel appliances. Multiple decks provide indoor-outdoor living. The primary bedroom is a tranquil retreat with a large sliding door to let the ocean breeze in and features an en-suite, spa-inspired bath and a spacious closet. The rooftop deck offers ocean and sunset views, with options for an outdoor kitchen and hot tub. Additional highlights include a two-car tandem garage with EV pre-wiring. The home is located near local beaches, cafes, farmers markets, and local wineries. Enjoy all that the Central Coast has to offer - all from your new coastal retreat.
PI25253107
Residential - Townhouse, Contemporary, 3+ Story
3
3 Full/1 Half
2026
San Luis Obispo
Public Water
4
Stucco, Wood Siding
Public Sewer
Loading...
The scores below measure the walkability of the address, access to public transit of the area and the convenience of using a bike on a scale of 1-100
Walk Score
Transit Score
Bike Score
Loading...
Loading...


