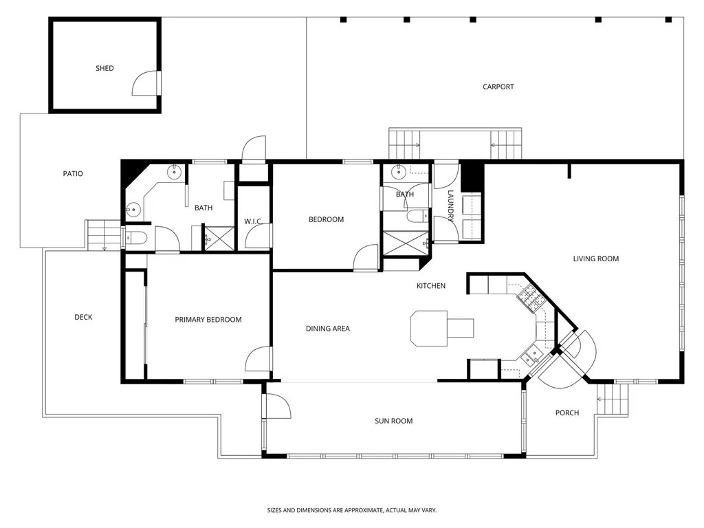
Roomy 2 bedroom, 2 bath home with a living room, dining area, family room, enclosed sunroom and a lovely setting with a forest view in the back yard. There is a spacious primary bedroom and ensuite bath and a sizeable guest bedroom with an attached bath. The family room, kitchen and enclosed sunroom are open to each other as a great room concept. There is a sizable deck off the rear of the home that takes full advantage of the beautiful forest views off the back. The carport can accommodate two cars and there is a very cute, clean shed with a concrete floor. This home has so much potential with some updating or remodeling. The exterior has been very well cared for and there is a very nice yard/garden space as well. Sunrise Terrace Mobile Home Park is a senior park and there is not land lease. There is an HOA fee of $290 a month. This park has many amenities that include, a pool, hot tub, spa, tennis and pickle ball courts, BBQ area, fire pit, bocce ball court, billiards, dog park, community room and a small golf course. Information is not verified or guaranteed.
SC25258421
Residential - Other, 2 Story
2
2 Full
1976
San Luis Obispo
Public Water
2
Fiber Cement, Fiberglass Siding, Unknown, Vinyl Siding
Public Sewer
Loading...
The scores below measure the walkability of the address, access to public transit of the area and the convenience of using a bike on a scale of 1-100
Walk Score
Transit Score
Bike Score
Loading...
Loading...


